Se rendre au contenu

CONCEPTION DE VOTRE ESPACE

Conception et dessin de votre cabinet dentaire : de l’idée à la réalité

Créer ou rénover un cabinet dentaire ne s’improvise pas. L’aménagement de l’espace, le positionnement du matériel, la circulation du personnel et des patients ou encore l’intégration des éléments techniques et informatiques exigent une planification rigoureuse.

Chez Dental Quality, nous vous accompagnons à chaque étape pour concevoir un environnement à la fois fonctionnel, ergonomique et harmonieux. 

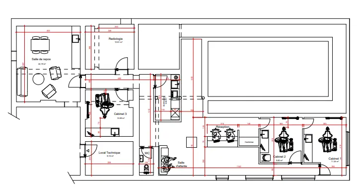
Nos services de conception et de dessin

Notre équipe spécialisée élabore pour vous :

  • Les plans d’aménagement complets du cabinet (zones cliniques, salle de stérilisation, accueil, salle d’attente, bureaux, etc.)
  • Les plans techniques détaillés pour l’électricité, la plomberie, les réseaux informatiques et audio
  • Les vues 3D et rendus réalistes pour visualiser votre futur espace avant les travaux
  • L’accompagnement dans le choix des équipements selon vos besoins, votre budget et la surface disponible

Chaque plan est conçu pour optimiser les flux de circulation, assurer le confort du praticien et du patient, et respecter les normes d’hygiène et de sécurité.

En savoir plus

L’importance du flux de circulation

Un cabinet bien conçu repose sur une logique de circulation fluide :

  • Séparation claire entre les zones propres et les zones contaminées
  • Parcours patient sans croisement avec les circuits du personnel ou du matériel
  • Accès optimisé au local technique et aux zones de stockage
  • Positionnement stratégique du fauteuil, des meubles et des instruments

Cette approche garantit efficacité, confort et hygiène, tout en valorisant votre image professionnelle.

.

En savoir plus

Un placement réfléchi des équipements et systèmes techniques

Nous intégrons dans nos plans :

  • L’emplacement optimal des équipements (fauteuils, compresseurs, aspirateurs, stérilisateurs, radiologie…)
  • L’organisation du local technique pour un entretien simplifié et une maintenance discrète
  • Les infrastructures informatiques et audio : réseau, serveurs, écrans, musique d’ambiance, etc.

Chaque détail compte pour créer un espace performant et agréable, au service de votre activité quotidienne.

En savoir plus

Pourquoi choisir Dental Quality ?  

S’entourer de Dental Quality, c’est bénéficier :

  • D’une expertise technique et dentaire unique
  • D’une vision globale combinant design, ergonomie et contraintes techniques
  • D’une assistance complète, depuis la conception jusqu’à la coordination avec les installateurs
  • D’une expérience éprouvée dans l’aménagement de cabinets dentaires modernes en Belgique et au Luxembourg

Notre objectif : vous offrir un cabinet à votre image, fonctionnel, esthétique et prêt pour l’avenir.

En savoir plus

Envie de collaborer avec nous ?

Transformons votre vision en réalité. Contactez-nous dès aujourd'hui pour démarrer votre projet.